PRZECŁAW
SZEREGÓWKA
JUŻ WKRÓTCE
Lokalizacja:
- Adres: ul. 3 Maja 169, 169A, 169B, 169C
- Działka nr: 1107
Charakterystyka budynku:
- Zwarta bryła architektoniczna
- Styl tradycyjny, murowany
- Dobrze komponuje się z otoczeniem
Kondygnacje:
- 2 kondygnacje nadziemne (parter + piętro)
Budynki mieszkalne:
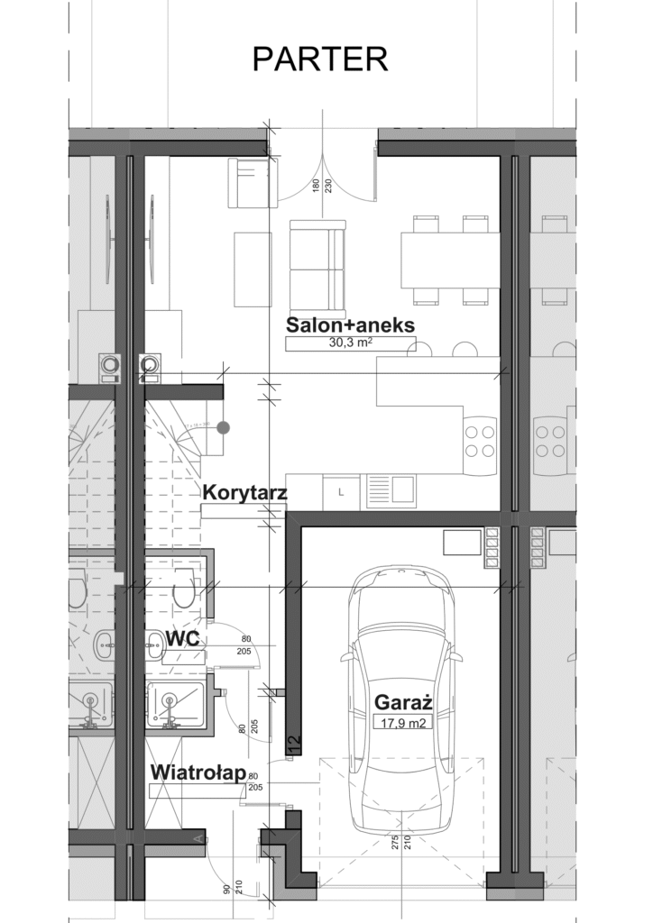
- Łącznie 4 budynki mieszkalne w zabudowie szeregowej 2 kondygnacyjne z garażem w kondygnacji parteru o powierzchni użytkowej ok. 120m2, wraz z działką
- Każdy budynek posiada taras w kondygnacji parteru, balkon na piętrze od strony południowej.
Dostępność:
- Budynek niski, przystosowany dla osób niepełnosprawnych
- Osobne wejścia do każdego z mieszkań
- Zaprojektowane miejsca postojowe dla mieszkańców
Wszędzie blisko:
- Zamek i park – 2,1km
- Sklep spożywczy – 1,8km
- Szkoła podstawowa – 1,8km
- Plac Zabaw – 2km
- Przedszkole – 2,3km
- Bank – 2,1m
- Pizzeria – 1,7km
- Urząd Miasta – 2,2km
- Poczta – 2,2km
- Kościół – 2,2km
- Rezerwat Bagna Przecławskie – 2,3km
